Building After
Av. 44 entre 17 y 18 | La Plata
CONCEPTO
La velocidad de los cambios de nuestro alrededor nos impulsa a adaptar constantemente nuestras formas de vida personal y laboral.
Acompañamos estos cambios proyectando e innovando en nuestra ciudad, Building After es un lugar placentero para quienes pasan gran parte del día trabajando y también para aquellos que buscan llegar a su primer Building.
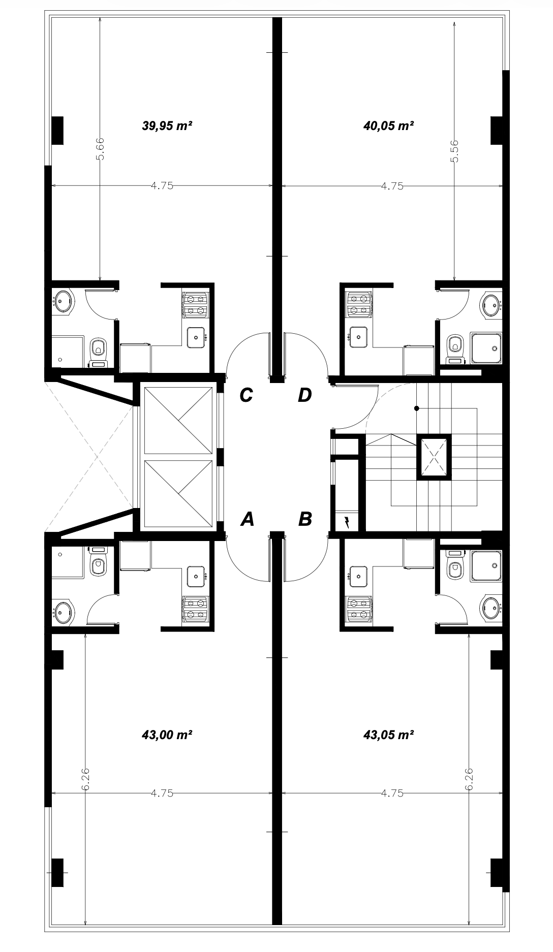
Su cercanía a un espacio donde se puede disfrutar de un café o una comida de negocios, el diseño interior de las oficinas y de sus amplios monoambientes ofrecen todas las comodidades ideales para trabajar o para vivir.
Building After Un lugar distinto al convencional, diseñado con el sello de diseño Building.
Si quieres obtener precios: Click AQUI
Si quieres consultar por Whatsapp: Click AQUI
Si quieres ver algunos de nuestros 80 edificios terminados: Click AQUI
Especificaciones Técnicas
CARPINTERÍA
Al frente: Ventana tipo piel de vidrio con vidrios tonalizados reflectivos segun unidad.
Al contrafrente: Marco y hojas corredizas de aluminio anodizado.
Puertas Interiores: Hoja y marco de madera pintadas de color blanco.
Office: Puertas corredizas
PISOS
Oficina: Porcellanato de primera calidad
Office: Porcellanato de primera calidad
Baño: Porcellanato de primera calidad
REVESTIMIENTOS
Baño: Cerámico esmaltado con detalle de guarda, de primera calidad. Colocación del revestimiento de piso a cielorraso.
Office: : Cerámico esmaltado, de primera calidad. Colocación 0.60m s/mesada.
ARTEFACTOS
Baño: Inodoro, bidet, receptáculo de ducha, vanitory y grifería, de primera calidad.
Office: Termotanque eléctrico, anafe eléctrico 2 hornallas, mueble bajo mesada, con puertas y cajones corredizos; mesada de granito con pileta de acero inoxidable, grifería monocomando de primera calidad.
PINTURA
Muros Interiores y cielorraso: Látex para interior.
Muros exteriores: Revestimiento plástico y látex acrílico.
Carpinterías de madera: Blanco satinado.
Palier: Pintura satinada.
REVOQUES
Exterior: Azotado de concreto e hidrófugo y acabado a la cal.
Interiores: Acabado a la cal y enduído.







(+54) 221 525-1111
info@buildingtower.com