Building 3D
Plaza Azcuénaga | La Plata
CONCEPTO
Toda La comodidad y la amplitud de una casa en un departamento. Donde cada uno puede tener su lugar especial.
Construimos y diseñamos un lugar para toda la familia, con amplias comodidades, pensado para quienes buscan un hogar con el espacio necesario para cada integrante.
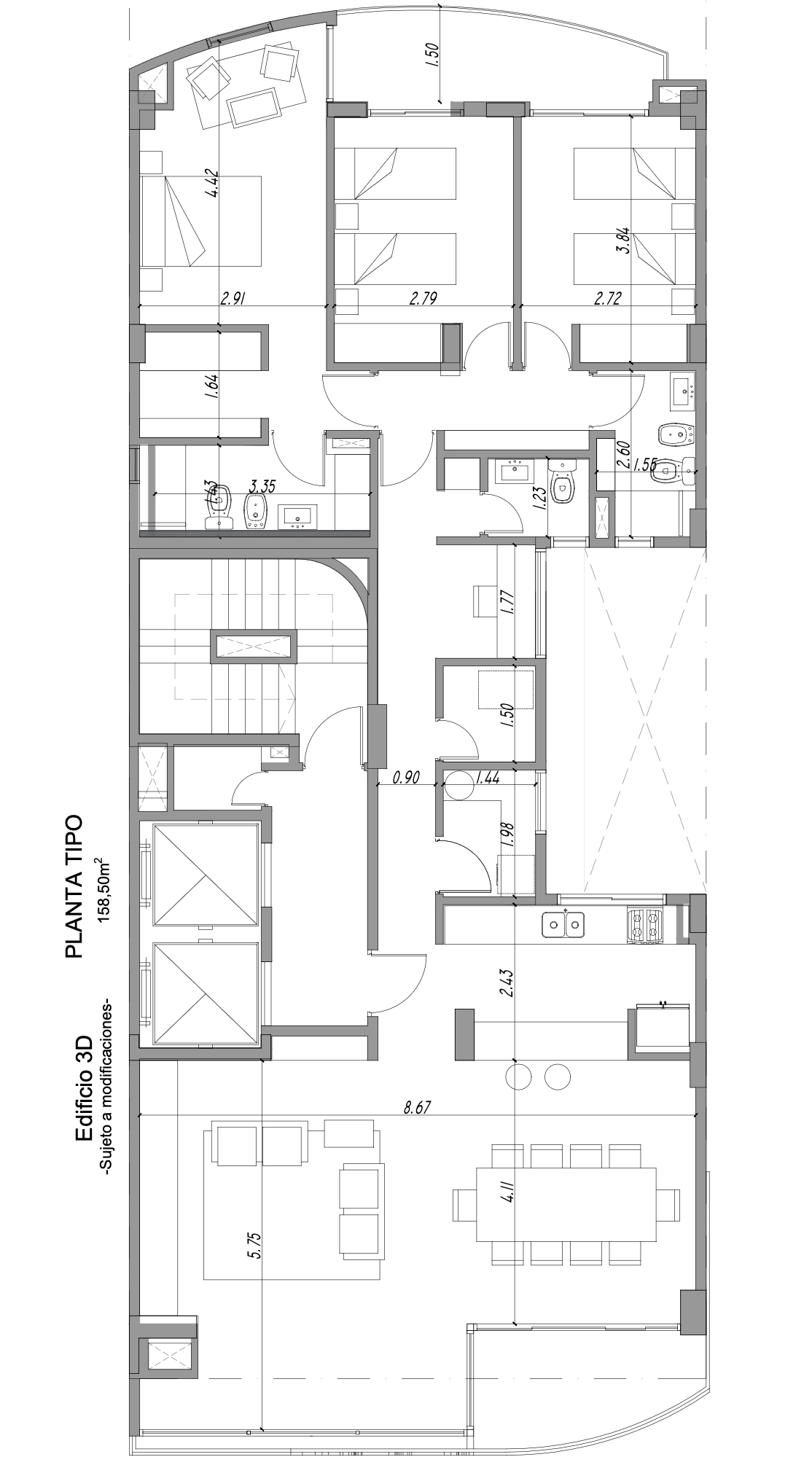
Building 3D esta conformado por pisos de 3 dormitorios, convirtiéndolo en el lugar ideal en donde cada ambiente aporta amplias comodidades, bienestar cotidiano y disfrute para cada miembro de la familia.
En Building 3D todos disfrutamos.
Si quieres obtener precios: Click AQUI
Si quieres consultar por Whatsapp: Click AQUI
Si quieres ver algunos de nuestros 80 edificios terminados: Click AQUI
Especificaciones Técnicas
CARPINTERÍA
Al frente y contrafrente: Carpintería con DVH; vidrios tonalizados reflectivos.
Puertas Interiores: Hoja y marco de madera pintadas de color blanco.
Placares: Puertas corredizas, frente integral pintado de color blanco, sin interiores.
Balcón: Con paño vidriado reflectivo y baranda de aluminio anodizado.
PISOS
Los dormitorios, el living comedor, el palier, la cocina y el baño son espacios de tu Building que contarán con porcellanato de primera calidad. Por su parte, los balcones tendrán porcellanato/cerámica de primera calidad.
REVESTIMIENTOS
El revestimiento del baño de tu Building contará con cerámico esmaltado con detalle de guarda de primera calidad.
Por su parte, la cocina también tendrá cerámico de primera calidad y estará colocado a 0.60m s/mesada.
ARTEFACTOS
El baño estará totalmente equipado con inodoro, bidet, receptáculo de ducha, vanitory y grifería de primera calidad.
La cocina contará con con caldera dual, cocina, mueble bajo y sobre mesada color blanco, con puertas y cajones corredizos; mesada Silestone blanca o similar con pileta de acero inoxidable, grifería monocomando de primera calidad.
PINTURA
Según del espacio que se trate, la pintura será la siguiente:
Muros Interiores y cielorraso: Látex para interior.
Muros exteriores: Revestimiento plástico y látex acrílico.
Carpinterías de madera: Blanco satinado.
Palier: Pintura satinada.
REVOQUES
Exterior: Azotado de concreto e hidrófugo y acabado a la cal.
Interiores: Acabado a la cal y enduido.




(+54) 221 525-1111
info@buildingtower.com